Info
Description: Tijuana, Mexico
Time Period: 2002 – 2004
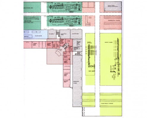
Printing plant – Hardcover books
Details
Investment volume:
23 mio CHF
Total production area:
9.000 m2
Total paper use per year:
5.500 t
Total number of employees:
250
Works
- General planning of a hard cover book printing plant
- Determination of the infrastructure
- Evaluation of all equipment








